LES VESTIGES DES FORGES DE PAIMPONT

D'après Jean Meunier de Rennes/St Jacques. Recherches, photos, texte.

Toujours sans savoir à quel usage précis ils étaient destinés, j'ai malgré tout fini de faire le tour des blockhaus des Forges de Paimpont.

Répartis entre le Pavillon et le Château (ou Chalet) des Forges, soit sur une surface de moins de 2 Km2, j'ai dénombré :

- Le PC enterré sous le parking du Pavillon,

- un blockhaus (A) en très mauvais état (dynamité, non accessible car dangereux) qui était peut-être une casemate pour une mitrailleuse protégeant le Pavillon (hypothèse perso mais pas si farfelue),

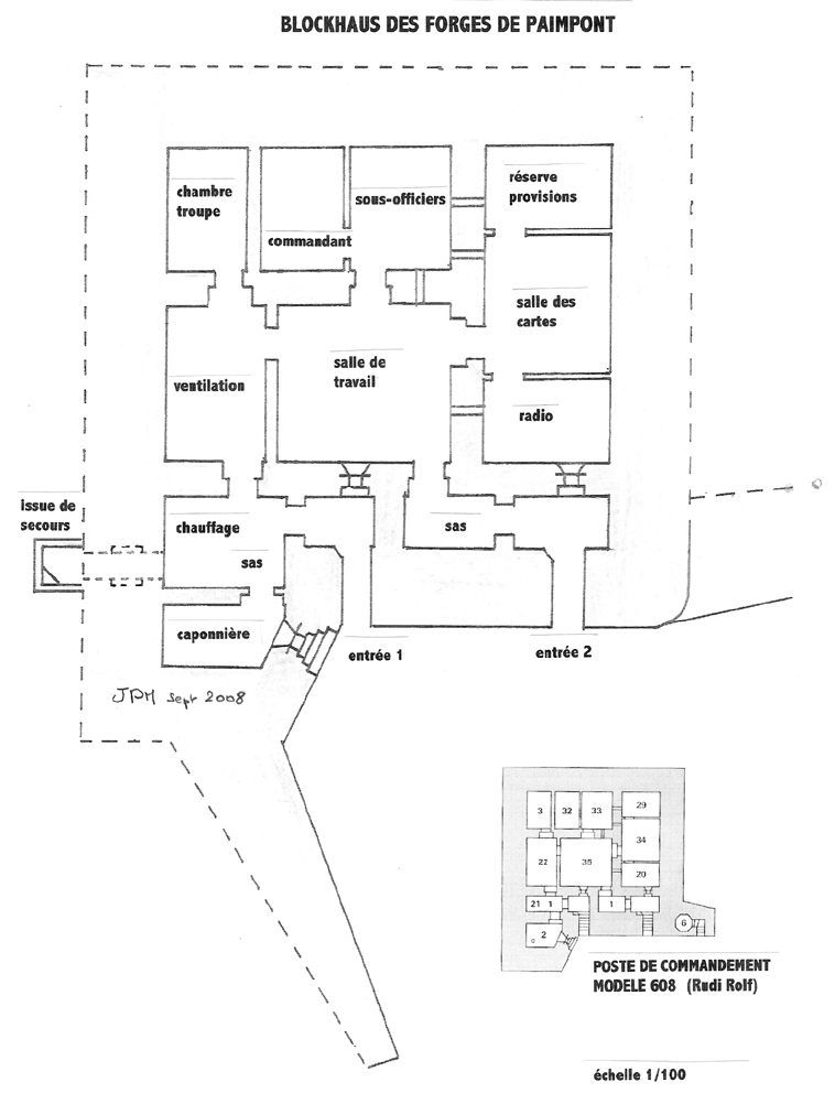
- un 1er blockhaus (B) ressemblant beaucoup à un poste de commandement modèle 608 (inondé),

- un puits bétonné et non accessible (à cause des enfants),

- un 2ème blockhaus (C), frère jumeau du (B), en bien meilleur état, don un autre modèle 608,

- des fondations d'un baraquement (sûrement en bois) assez vaste (8m x 15 ou 20),

- un blockhaus citerne (D), presqu'au bord de la route de Paimpont,

Au Chalet :

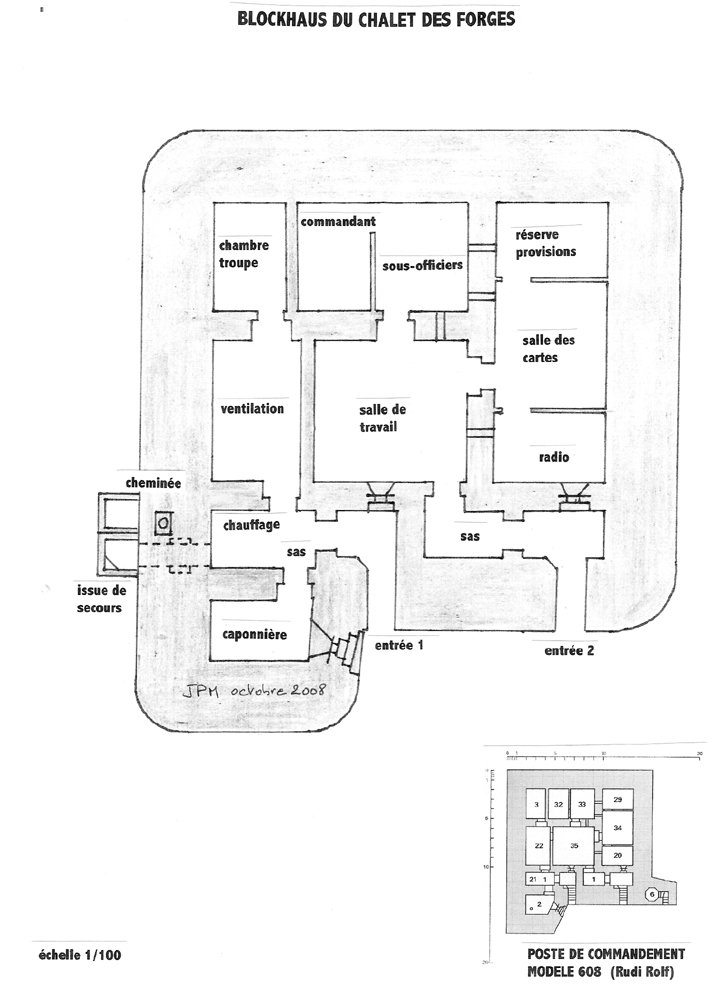
- un 3ème blockhaus (E) se rapprochant encore plus du modèle 608 que les deux premiers, en parfait état, qui aurait prévu comme PC de Rommel, au centre de la Bretagne (selon la propriétaire). Personnellement, je trouve que c'est un petit PC pour un grand chef...

- des fondations pour un baraquement idem l'autre mais beaucoup moins apparentes.

Enfin, dans la forêt, prés d'une source, un curieux blockhaus station de pompage qui devait alimenter le blockhaus citerne (D).

Cela fait donc un total de 10 ouvrages qui ne sont pas dus au hasard.

Pour moi, la suite sera de savoir qui occupait les lieux. Donc à suivre.

En PJ, les plans.

PS : situés en terrains privés, ils ne sont pas accessibles.

GO
Abri PC sousterrain du pavillon

GO

GO
GO

GO

GO
GO
GO
Blockhaus (A)

GO

GO

GO
GO
Blockhaus (B)
Issue de secours
GO

GO

GO
GO
Blockhaus (C)

GO
GO
Blockhaus citerne
Blockhaus citerne

GO
GO
Intérieur du Blockhaus citerne
Intérieur du Blockhaus citerne

GO
GO
Blockhaus station de pompage
Intérieur du Blockhaus de la station de pompage

GO
La source

GO
Fondation de la baraque